

設計亮點
·玄關|六角花磚、香檳色的收邊條
·客廳|柔和的圓弧造型、金屬刷漆飾板
·浴室|復古感的綠色長條磚
預算總額【系統櫃+裝修】
180~200萬(老屋翻新)
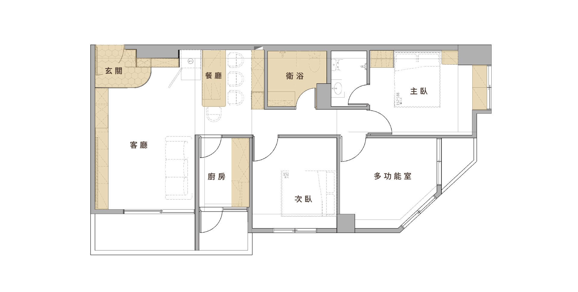
空間序章
屋主是一位熱愛生活、喜歡交友的女士,為了讓來訪的親友在熟悉的老屋中也能自在相聚,選擇重新整理居住多年的空間。
全室以溫潤的米灰木紋與可可色系板材為主調,揉合復古元素,營造出優雅舒適又帶點懷舊情調的生活氛圍。
玄關|
步入家門,首先映入眼簾的是獨特的灰藍色六角花磚。
設計師巧妙地利用異材質地材,搭配優雅的圓弧收邊,劃分出落塵區與室內空間。

原本入口處的高聳鞋櫃,不僅容易造成視覺壓迫,也因高度和非固定性設計,存在安全疑慮。所以設計師將其改為低矮的平臺櫃,讓玄關視覺更顯輕盈開闊。

客廳|
設計師在原有的白色磁磚上,重新鋪設了溫潤的木地板,搭配淺色的牆面與家具,營造出溫馨舒適的居家氛圍。
為維持電視主牆的完整性,設計師將冷氣移設至落地窗側,並以窗簾盒隱藏管線。窗邊配置雙層窗簾,在調節採光的同時,還能有效遮蔽陽台雜物,保持視野清爽。


餐廳|
翻新前,餐廳的動線與收納配置相對分散,主要被開放式層架、餐桌及雜物占據。
設計師將此處重新規劃為兼具儲物與社交功能的輕食及用餐區。

餐邊櫃採平台搭配吊櫃的設計,並將電器櫃整合其中。上方大樑透過包樑並嵌入間接照明,柔化了空間的線條,更為用餐區提供了溫和充足的光源。

廚房|
考量到爐具旁的舊窗戶不好清潔,所以設計師將原本的窗戶封閉,並改貼耐髒且易於清理的琺瑯板,讓廚房的維護更加輕鬆。通往陽台的門也改換為實用的三合一門,讓通風與採光更具彈性。


浴室|
原本低矮昏暗的衛浴,在拆除舊天花後向上提升高度,僅包覆橫樑並搭配間接照明,弱化橫樑的存在感,讓空間更為明亮寬敞。
牆面下半部鋪貼帶有復古氣息的綠色長條磚,其餘壁面、地坪與天花以淺色留白,讓視覺焦點更集中,也維持整體的清爽感。

主臥|
主臥室延續了全室的溫暖淺色調。
為了解決床鋪上方的大樑帶來的壓迫感,設計師運用弧形包樑,以柔和的線條取代銳利的稜角,創造出安穩舒適的睡眠環境。

房內沒有設置梳妝台,而是根據屋主的使用習慣,在窗戶下方的畸零空間處設計了實用且貼合空間的斗櫃。

窩百態 #免費設計師諮詢 你絕對不能錯過







































.jpg)
.jpg)


